OTTO:FH Gottfried / FH Ostsee

zurück
Haus Gottfrie - Haus Ostsee
OTTO:FH Gottfried / FH Ostsee
OTTO:FH Gottfried / FH Ostsee
OTTO:FH Gottfried / FH Ostsee
OTTO:FH Gottfried / FH Ostsee

Beschreibung

max 16

Personenanzahl dargestellt als Symbol

3

Anzahl der verfügbaren Bäder

6

Grafisches Symbol für vorhandene Schlafzimmer

180,00 m²

Flächensymbol zur Darstellung der Quadratmetergröße

Haus Gottfried – Großzügiges Gruppenglück für bis zu 16 Personen

Willkommen im Haus Gottfried! Wenn Sie eine Unterkunft suchen, die Gemeinschaft großschreibt und dennoch klare Strukturen bietet, sind Sie hier genau richtig. Mit Platz für bis zu 16 Gäste, verteilt auf 6 Schlafzimmer, ist dieses Haus in Rabenkirchen-Faulück perfekt auf die Bedürfnisse großer Familien, Sportgruppen oder Freundestreffen zugeschnitten.

Durchdachte Raumaufteilung für große Gruppen

Das Haus Gottfried bietet eine funktionale Aufteilung, die ideal ist, um auch mit einer großen Gruppe entspannt Urlaub zu machen:

  • 6 separate Schlafzimmer: Diese bieten eine hervorragende Basis, um die 16 Gäste flexibel aufzuteilen. Die Zimmer sind so konzipiert, dass sie sowohl Rückzugsort als auch gemütliche Schlafstätte sind.

  • Das Herzstück: Der großzügige Gemeinschaftsbereich lädt dazu ein, dass alle 16 Personen zusammenkommen. Ob für das gemeinsame Frühstück vor dem Ausflug oder den geselligen Ausklang am Abend – hier ist Platz für alle.

Ausstattung & Komfort:

  • Gruppenküche: Die Ausstattung ist darauf ausgelegt, auch eine große Anzahl an Gästen problemlos zu verpflegen.

  • Praktische Helfer: WLAN ist inklusive; Waschmaschine und Trockner stehen (gegen Gebühr) zur Verfügung, um auch bei längeren Aufenthalten flexibel zu bleiben.

  • Draußen genießen: Das weitläufige Grundstück rund um das Haus bietet viel Freiraum für Aktivitäten an der frischen Luft oder entspannte Stunden in der Sonne.

Lage: Ihr Tor zur Schlei und Ostsee

Haus Gottfried liegt idyllisch in Rabenkirchen, nur einen Katzensprung von der Hafenstadt Kappeln entfernt. Entdecken Sie die Highlights der Region:

  • Maritime Erlebnisse: Der Hafen von Kappeln mit dem berühmten Heringszaun.

  • Strandfeeling: Die feinsandigen Ostseestrände sind in wenigen Autominuten erreichbar.

  • Aktivurlaub: Perfekte Wege für Radtouren durch die sanfte Hügellandschaft Angeln.

Besonders geeignet für:

  • Mehrgenerationen-Urlaub, bei dem durch die 6 Schlafzimmer jeder seinen Platz findet.

  • Vereine und Jugendgruppen, die eine unkomplizierte, geräumige Unterkunft suchen.

  • Workations oder Team-Events, die viel Platz für Austausch und Arbeit benötigen.

Buchen Sie jetzt das Haus Gottfried! Genießen Sie die Weite der Region und den Komfort eines Hauses, das perfekt auf große Gruppen eingestellt ist.

Preisrechner

Anreise
Abreise
Summe

Service Hotline

04642 - 92140

Ausstattung

  • Hund erlaubt,
  • Grillplatz
Sicherheit
  • Feuerlöscher,
  • Kameras im Aussenbereich,
  • Kameras im Check-In Bereich,
  • Rauchmelder
Aktivität
  • Wandern,
  • Angeln in Schlei und Ostsee,
  • Windsurfing,
  • Kanufahren,
  • Radfahren
Küche
  • Geschirrspüler,
  • Geschirr,
  • Kaffeemaschine,
  • Toaster,
  • Kochtöpfe,
  • Herd,
  • Wasserkocher,
  • Backofen,
  • Küche,
  • Kochutensilien,
  • Besteck,
  • Gefrierfach,
  • Herd,
  • Kühlschrank,
  • Esstisch,
  • Geschirrtücher inkl.
Badezimmer
  • warmes Wasser,
  • Waschmaschine,
  • Waschbecken,
  • Spiegel,
  • Dusche (bodengleich),
  • WC,
  • Dusche/WC
Nachhaltigkeit
  • Solaranlage,
  • Mülltrennung
Ausleihbar auf Anfrage
  • Kinderbett,
  • Staubsauger,
  • Babybett,
  • Kinderhochstuhl
allgemeine Informationen
  • Internet,
  • Kleiderschrank,
  • Familienurlaub,
  • Gruppenhaus,
  • Parkplatz,
  • Garderobe,
  • Nichtraucher,
  • Kleiderbügel,
  • Barrierefrei/Barrierearm,
  • Heizung,
  • Rauchmelder,
  • WLAN-Ausstattung,
  • separater Eingang,
  • Kontaktloser Check-in/Check-out,
  • Urlaub mit Baby,
  • ländlich gelegen,
  • Haustiere erlaubt auf Anfrage
Außenbereich
  • Sonnenschirm,
  • Garten/Liegewiese,
  • Garten,
  • Gartenstühle,
  • Terrasse (überdacht)
Terrasse
  • Grill,
  • Terrasse
Wohnbereich
  • Fernseher,
  • Sofa

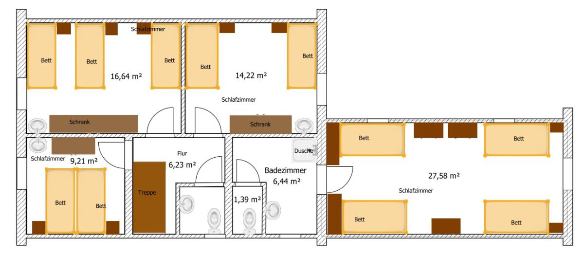
Grundriss

Lage

Ich stimme der Verarbeitung von Daten (insbesondere meiner IP-Adresse) und deren Übertragung außerhalb der EU durch Google Maps und/oder OpenStreetMaps zu, um die Karte anzuzeigen.
Mehr erfahren

Entfernungen

  • Bahnhof Süderbrarup5.48 km
  • Touristinfomation Kappeln5.89 km
  • Einkaufsmöglichkeit in Kappeln6.41 km
  • Einkaufsmöglichkeit in Süderbrarup5.33 km
  • Strand Hasselberg12.25 km
  • Golfplatz Stenerberg1.17 km
  • Museumsinsel Schloss Gottorf27.39 km
  • Wikinger Museum Haithabu26.69 km
  • Bäcker Ebsen Süderbrarup5.03 km
  • Fahrradverleih Karschau4.54 km
  • Schlei Erleben6.62 km
  • Familien-Freizeitpark Tolk-Schau17.15 km
  • Wasserskipark Damp15.01 km

Bewertungen

Noch sind keine Bewertungen vorhanden
Bewertung abgeben

Belegungskalender

April 2026
Mo Di Mi Do Fr Sa So
  12345
6789101112
13141516171819
20212223242526
27282930   
       
Mai 2026
Mo Di Mi Do Fr Sa So
    123
45678910
11121314151617
18192021222324
25262728293031
       
Juni 2026
Mo Di Mi Do Fr Sa So
1234567
891011121314
15161718192021
22232425262728
2930     
       
Juli 2026
Mo Di Mi Do Fr Sa So
  12345
6789101112
13141516171819
20212223242526
2728293031  
       
 
frei
 
keine An-/Abreise
 
Anreise
 
Abreise
 
belegt
 
Auswahl
 
heute
 
keine Preise
 
Angebote
 
Blockierung
 
Option

Preise

Angebote

Basic Deal
Gültig vom 24.03.2026 bis 01.04.2027
5,00% Prozent vom Objektpreis
zum Angebot
Reisezeitraum Nächte erster Tag pro Nacht einmalig für ... Personen Anreise nur
Reisezeitraum17.04.2026 - 29.04.2026 Nächte2 erster Tag320,00€ pro Nacht180,00€ einmalig140,00€ für ... Personen8 Anreise nuregal
Reisezeitraum30.04.2026 - 13.05.2026 Nächte3 erster Tag399,00€ pro Nacht259,00€ einmalig140,00€ für ... Personen12 Anreise nuregal
Reisezeitraum14.05.2026 - 17.05.2026 Nächte4 erster Tag429,00€ pro Nacht289,00€ einmalig140,00€ für ... Personen12 Anreise nuregal
Reisezeitraum18.05.2026 - 21.05.2026 Nächte3 erster Tag409,00€ pro Nacht269,00€ einmalig140,00€ für ... Personen12 Anreise nuregal
Reisezeitraum22.05.2026 - 25.05.2026 Nächte4 erster Tag429,00€ pro Nacht289,00€ einmalig140,00€ für ... Personen12 Anreise nuregal
Reisezeitraum26.05.2026 - 28.06.2026 Nächte4 erster Tag409,00€ pro Nacht269,00€ einmalig140,00€ für ... Personen12 Anreise nuregal
Reisezeitraum29.06.2026 - 06.07.2026 Nächte7 erster Tag469,00€ pro Nacht329,00€ einmalig140,00€ für ... Personen12 Anreise nurMo,Di,Mi,Do,Fr
Reisezeitraum07.07.2026 - 16.07.2026 Nächte7 erster Tag499,00€ pro Nacht359,00€ einmalig140,00€ für ... Personen12 Anreise nurMo,Di,Mi,Do,Fr
Reisezeitraum17.07.2026 - 23.08.2026 Nächte7 erster Tag469,00€ pro Nacht329,00€ einmalig140,00€ für ... Personen12 Anreise nurMo,Di,Mi,Do,Fr
Reisezeitraum24.08.2026 - 11.09.2026 Nächte5 erster Tag439,00€ pro Nacht299,00€ einmalig140,00€ für ... Personen12 Anreise nuregal
Reisezeitraum12.09.2026 - 14.10.2026 Nächte5 erster Tag409,00€ pro Nacht269,00€ einmalig140,00€ für ... Personen12 Anreise nuregal
Reisezeitraum15.10.2026 - 30.10.2026 Nächte7 erster Tag440,00€ pro Nacht300,00€ einmalig140,00€ für ... Personen12 Anreise nuregal
zum Preisrechner